NÃO PERCA tempo!
SIMULE AGORA O VALOR DA SUA casa!
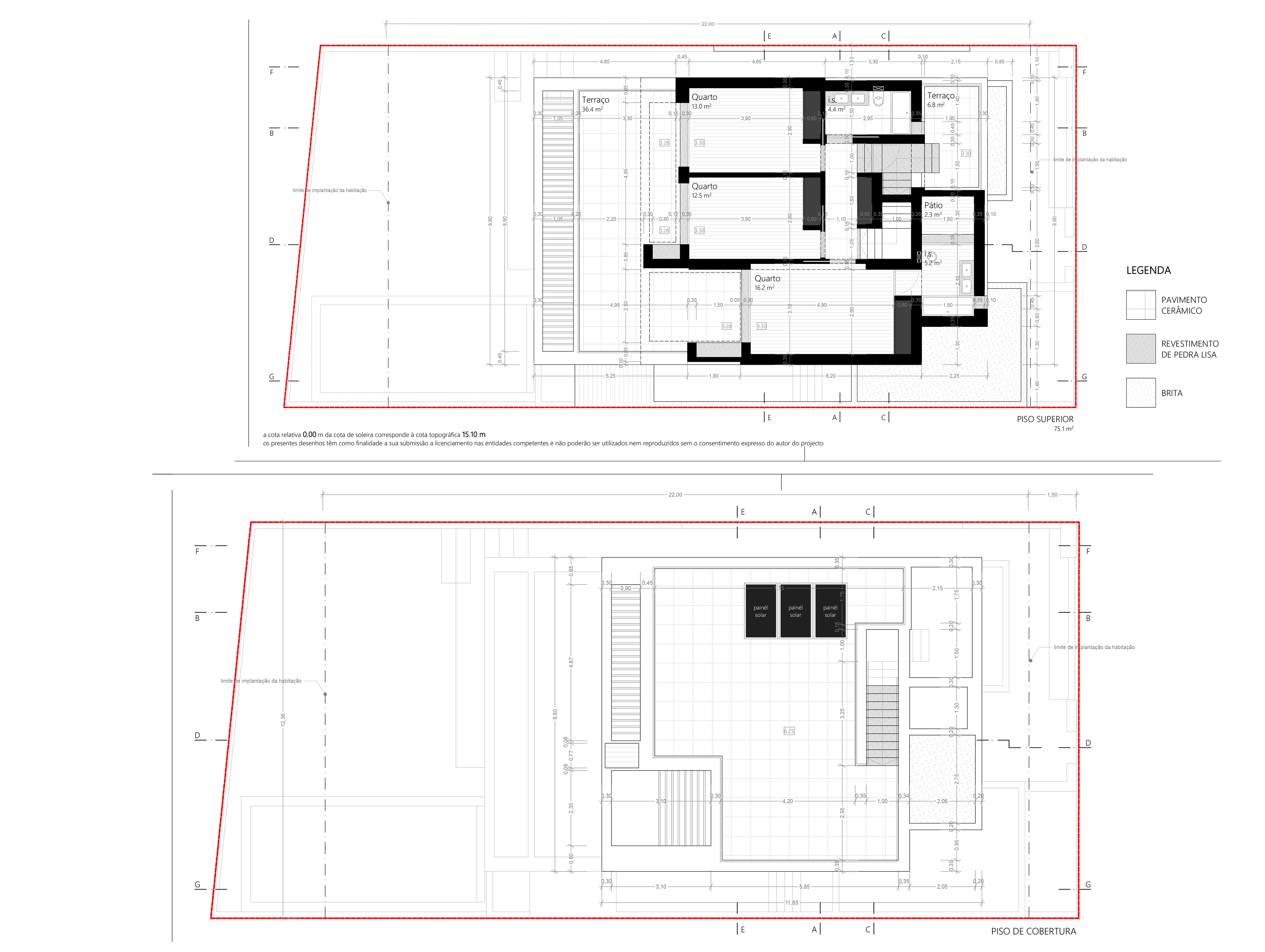
Apresentamos esta magnífica moradia isolada, pensada para quem procura uma vida tranquila, rodeada de conforto e perto do que de melhor o Algarve tem para oferecer. Localizada numa zona calma e exclusiva, esta propriedade com dois pisos e cave encontra-se num lote de 326m², com uma área total de pavimento de 222,60m². Apenas a 5 km da Marina de Vilamoura, de Vale do Lobo e de Almancil, aqui encontrará o espaço ideal para viver com qualidade.
Piso Térreo:
Piso Superior:
Cave:
Esta moradia está equipada com um conjunto de comodidades que elevam a sua qualidade de vida. O aquecimento é assegurado por pavimento hidráulico alimentado por bomba de calor, enquanto os painéis solares térmicos instalados na cobertura reforçam a sustentabilidade da propriedade. Os estores elétricos e as portas de correr com vidros duplos e corte térmico contribuem para a eficiência energética, culminando numa certificação energética A+.
A poucos minutos das praias, como o Forte Novo (a 2,5 km), e de áreas prestigiadas como Vale do Lobo e a Marina de Vilamoura (a 5 km), esta propriedade está ainda próxima de serviços essenciais, como supermercados, escolas e clínicas veterinárias. Para os entusiastas de golfe, a receção de Vale do Lobo está apenas a 4,7 km.
Esta moradia oferece tudo o que procura: conforto, funcionalidade, sustentabilidade e uma localização de sonho. Agende já a sua visita e deixe-se encantar por esta propriedade única no Algarve, onde a tranquilidade e a qualidade de vida se unem na perfeição.